Rentals » 4110 Northwest 22nd Avenue - 2C Miami, FL 33142

4110 Northwest 22nd Avenue - 2C Miami, FL 33142

$2,100.00 / month
Available 8/1/2026
  • 1 Bed
  • 1 Bath
  • 669 sqft
  • Built in 2026

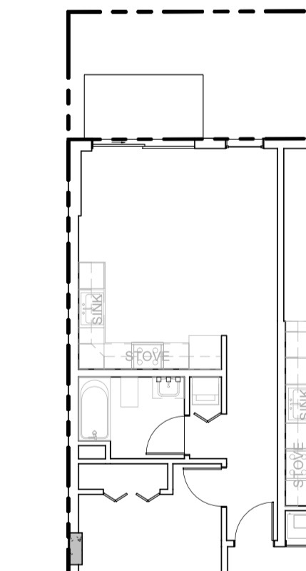
Unit type C: 1 Bedroom / 1 Bathroom with a total of 622 SF and a balcony of 47 SF.

The building is currently under construction. Please note that there are no on-site amenities. All utilities are the tenant's responsibility. To rent the unit, first month's rent, last month's rent, and a security deposit are required.

Lease Terms

$2,100.00 security deposit

Rental Application

Interested in one of our properties?

Apply online